图知网
搜索
首页
热门推荐
图片分类
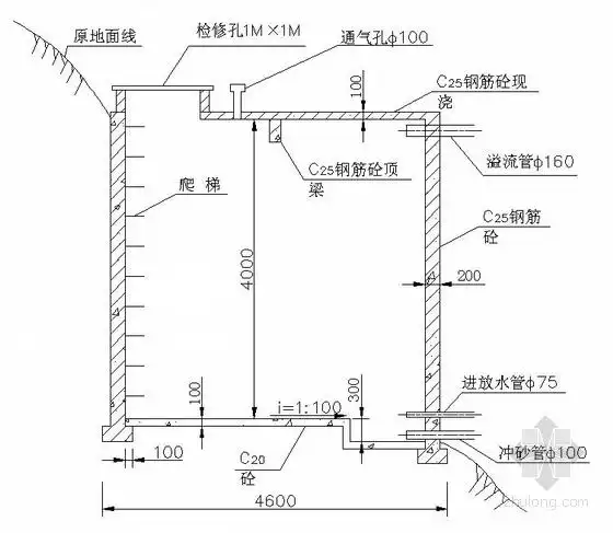
最新某圆形蓄水池结构设计cad图纸
下载原图
相关图片
某500立方米蓄水池结构设计图
50方钢筋砼蓄水池设计详图
蓄水池设计图纸
20立方米矩形蓄水池设计施工图
蓄水池设计图
蓄水池设计图
为你推荐
云梦山景区之南天门美图
兰草已成行,山中意味长.坚贞还自抱,何事斗群芳.#因为热爱所以坚持
这个学院的退伍士兵宿舍刷爆朋友圈!_部队_汽车_活动
模具结构图
代表了德国汽车制造商大众汽车公司
lvhockenheim男士豆豆鞋
22版本余震中单皎月玩法攻略
迪士尼城堡简笔画 上海迪士尼城堡简笔画