图知网
搜索
首页
热门推荐
图片分类
儿童画合集 花动物房子猪猫咪卡通创意画 儿童画合集都有线稿9315
下载原图
相关图片
小猫简笔画,卡通动物儿童画,幼儿绘画启蒙
幼儿园小动物卡通图片,可打印素材 需要原图可分享
幼儿园小动物卡通图片,可打印素材 需要原图可分享
50张水豚贴纸卡通可爱跨境卡通小动物儿童贴纸diy滑板行李箱贴纸
卡通动物自粘墙纸贴画男孩卧室儿童房间装饰墙贴画幼儿园墙壁卡|小
200张小动物儿童贴画奖励贴纸表扬小学生幼儿园卡通恐龙图案装饰
为你推荐
"影子的偏爱也是你"#博肖 #bxg #博君一肖 #影子 # - 抖音
来自深渊烈日的黄金乡 #娜娜奇 毛茸茸香喷喷的娜娜奇谁会不 - 兑音
100%的电量头像 电量100满格头像_微信头像图片大全
国产福田面包车!
宋小宝病情加重晒全家近照如今娇妻相伴儿女双全
原创李现连续3年为杨紫送生日祝福童颜夫妇售后真甜张一山直接被杨紫
超a女神短发公主切,引领时尚潮流发型之一.
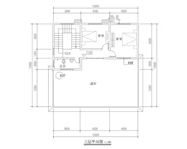
占地12*12,三层欧式别墅全套设计图纸 - 住宅在线