图知网
搜索
首页
热门推荐
图片分类
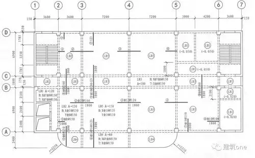
现浇单向板肋梁楼盖设计实例
下载原图
相关图片
现浇板配筋原理图文详解_钢筋
钢筋混凝土板配筋示意图
淮阴工学院现浇单向板楼盖配筋图
2020版钢筋平法三维速查手册附7套16g图集识图无压力
楼板负筋不论钢筋级别,也就是一级二级三级钢都要做90度弯钩,使其支在
现浇钢筋混凝土板结构详图
为你推荐
朴灿烈头像
03,陈瑶
超可爱的权律二图片大全 快来了解一下这个小可爱,权律二的头像超
风景头像 成熟稳重
铝制排水沟泛水沟波纹阴沟瓦泛水板定做
胡天鸽剧中的蓝齐儿是一个幸福快乐,活泼大方的格格,很多人疼她爱她.
烤串系列
13个具有科学思想的最佳科技科研标志logo设计