图知网
搜索
首页
热门推荐
图片分类
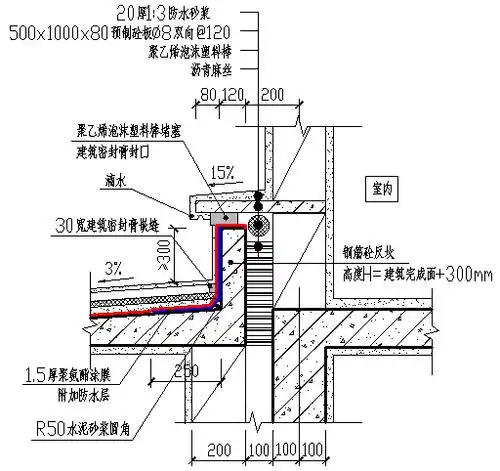
5, 屋面变形缝—既不影响屋面的变形,又要防止雨水渗漏
下载原图
相关图片
image:柔性防水屋顶变形缝构造.jpg
屋面铝合金变形缝地面铝合金变形缝
[资料] 变形缝屋面详图
[分享]高低屋面变形缝怎么做?
高低跨变形缝防水作法大样
高低屋面变形缝做法
为你推荐
西装模板 男生西装 寸照模板 西装 证件照 西服 免抠
收集春天的瓶子简笔画素材小姐妹们自取啦95 天气这么好的春天,带着
宝宝十五天,脖子上长这个,这是湿疹还是痱子?用什么好?
28个警告标志矢量素材
沙漠玫瑰 一物一拍多肉植物大肉老桩不含盆土
康华_演技_角色
八公山豆腐干五香豆干酱香茶干安徽正宗特产豆制品手工香干子酱香豆干
飘动的中国国旗简笔画怎么画好看