图知网
搜索
首页
热门推荐
图片分类
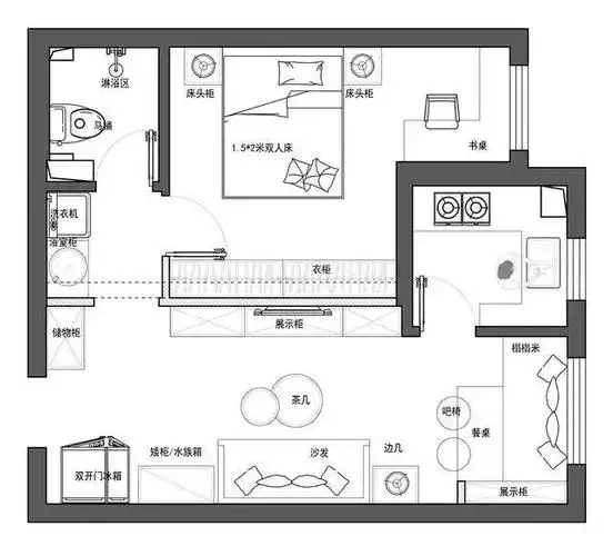
家装50平米小户型住宅平面图
下载原图
相关图片
晒晒表姐新家,50平米小户型,温馨又实用,客厅有亮点可参考!
8万50平米现代小户型/一房装修效果图,50平精致小窝装修案例效果图
50平米小户型请哪位朋友帮我设计一下!万分感激!
50平米小户型单身公寓装修设计平面图
50平米的户型图
50平的小户型公寓设计,把厨房和阳台打通变成开放式
为你推荐
苗圃大21岁老公背景曝光,背景强大,难怪不肯公开!
功夫里酱爆洗头的那一段更是让人笑
wechat简约聊天背景图
popping是什么嘻哈大狮来帮你解读
李小冉生活中的几张照片
绿豆苗的一天
改名后的《爱上特种兵》来了,黄景瑜李沁上演不一般的军旅爱情_腾讯
2019版智能型投币器加强型防钓型007硬币识别器一元硬币1元