图知网
搜索
首页
热门推荐
图片分类
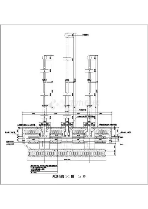
升旗台施工做法图片
下载原图
相关图片
单杆国旗台施工图
三杆升旗台
三杆式升旗台大样cad图
某升旗台施工大样图及节点cad
某中学开敞式三杆升旗台施工图cad设计图
升旗台详情_11.jpg
为你推荐
女生超拽头像2022霸气侧脸头像当吃货瘦了说明她不快乐了
谁能拒绝得了帅帅的黑影兵团呢~_男生头像_我要个性网
影楼工作室简约全家福亲子摄影样片样版样照s794
桂花摄影
陈瑶韩东君《无心法师3》甜蜜剧照图片[2/6]_电视剧_美桌网
铁艺花架绿萝三层展示架阳台多肉置物架家用室内多层落地花盆架子
表格模板_个人简历空白表格rn__个人简历__求职书(二)____应聘职位
抖音你要是能把奥特曼的名字说出来我给你100表情包图片大全v10