图知网
搜索
首页
热门推荐
图片分类
涵洞ppt
下载原图
相关图片
涵洞
某涵洞拱涵设计全套图纸
一直搞不清八字墙,翼墙,隔水墙等概念.希望有详细的示意图.
国道连接线道路涵洞施工图(圆管涵,倒虹吸)
Φ100钢筋混凝土圆管涵 - 涵洞尾水口图纸下载 - 沐风图纸
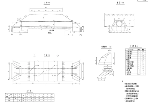
本涵洞位于半径300米的曲线上,斜交40度,出入口均采用八字墙 查看详情
为你推荐
花样滑冰考斯滕表演服定做高定成人儿童
《山毛豆花》
14-15巴萨主场女装足球球衣 极品泰版 厂家批发现货足球服马竞
香港9396 优购百货免税店关外发货人民币5590蚬壳胃散97 香港
【红酒杯加厚图片】红酒杯加厚图片大全_q友网
雅园的连廊,在大雪中发挥了积极作用,真是"功德无量!
达美航空 波音737-900er 驾驶舱
宝宝卡通抠图素材|男宝宝篇99_卡通_萌娃_萌萌哒_我家萌娃最可爱