图知网
搜索
首页
热门推荐
图片分类
紫仓仓鼠怀孕特征
下载原图
相关图片
求问我家仓鼠是怀孕了吗,有做窝好斗咬笼子的现象,11月16日交配,如果
怀孕母仓鼠图片!
仓鼠怀孕了是什么样子的?
仓鼠肚子这样是怀孕了吗
咋么看仓鼠是否怀孕
才两个月大就用一分钟把人家搞怀孕了,孩子出生时还在睡觉.#仓鼠怀孕
为你推荐
适合发自拍的干净短句 晒自己照片的简易说说 - 唯美句子- 不二励志
paphiopedilum micranthum 硬叶兜兰,兜兰属.
祝生日快乐的优质短句 - 百度文库
高斯:一个让演员王阳独宠的"旺夫"女人
尊敬的兰大王乃昂教授是泥蜂窝还是泥石流
皮肤扩张器治疗大面积瘢痕与色素痣 - 好大夫在线
海外代购levartbolv100学生长号初学考级专业长号
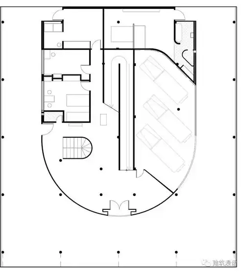
萨伏伊夫妇就是从巴黎的公寓中开车到该别墅的建筑中心下车,其平面的