图知网
搜索
首页
热门推荐
图片分类
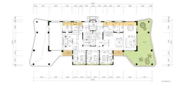
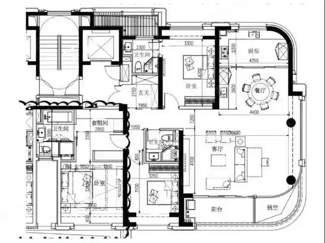
户型优化600平米大平层1.99一平米优化
下载原图
相关图片
大平层是用来享受的吗这个600平米户型会告诉你一个答案
带你解析一套600平方的大平层户型
六百多平米的大平层天花板,顶级豪宅的代表作_卧室_区间_电梯
徐汇滨江全新精装修大平层地铁11号线600米初次出租
舒适生活最根本 改善生活从大平层开始户型:江山平墅d户型380平米四房
空中宫殿600平米大平层户型拥有挑高7米的阳台,心动了吗?
为你推荐
分享一组动漫绘画教程【各种眼睛的画法】~简单萌爆了~转需吧~ヾ(● 0
徵羽摩柯(1—10)-柯学家们的小天神-话本小说网
三,深蓝(skyy)洋酒网友对比评测
太湖宴老法菜:不得不说的那一道清蒸白鱼
西湖美景
"#凯亚语c#迪卢克凯亚
尺码对照表
图为055大型驱逐舰特别是055大型驱逐舰的出现,该型作战舰艇不仅性能