图知网
搜索
首页
热门推荐
图片分类
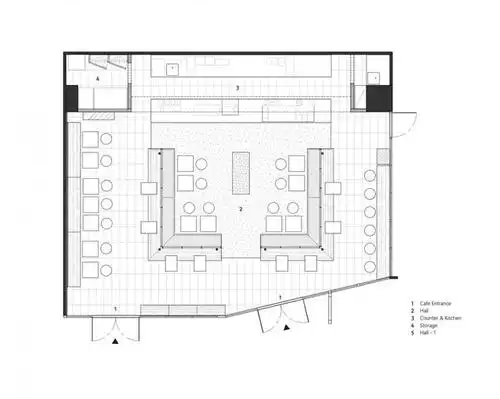
280平左右咖啡厅平面求指导
下载原图
相关图片
咖啡厅施工图cad代画物业报建图低价低价
街角咖啡店-宋扬 张天鹤的设计师家园-咖啡厅/咖啡吧
成都锦颐轩咖啡厅--平面布置
咖啡厅平面布置图
简而不陋,华而不奢的咖啡厅设计
豆先生咖啡厅
为你推荐
加油好男儿井柏然如何夺冠,2007年"加油好男儿"前三甲
动漫少女活泼壁纸
齐肩卷发
潮牌壁纸高清
yjzt 创意火焰骷髅趣味汽车贴纸 防水划痕遮挡遮盖炫酷车贴cst617
如果只有龙域领主或青龙志,又特别喜欢玩铠,不喜欢绛天战甲的机甲元素
行尸走肉 第一季 p18 夜闯克劳福德
剪刀门 运动尾翼,东风"风神奕炫max"暗夜版实拍,战斗力超a7!_腾讯新闻