图知网
搜索
首页
热门推荐
图片分类
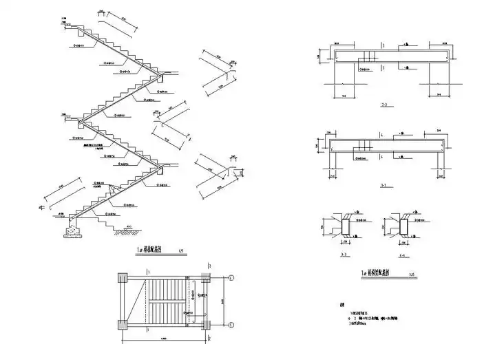
[节点详图]某钢楼梯施工节点构造详图
下载原图
相关图片
构造详图(现浇混凝土板式楼梯)(替代16g101-2)新版混凝土结构施工图集
某混凝土楼梯节点构造cad详图
楼梯详图
某钢结构梁式楼梯施工图(cad)-钢结构节点详图-筑龙结构设计论坛
楼梯详图
某高层住宅楼梯构造cad详图
为你推荐
1080_2139竖版 竖屏
双层钢化玻璃推拉门,质量杠杠的,需要的请联系
元气骑士前传彩蛋节boss武器皮肤介绍
爸爸去哪儿-同名真人秀主题曲(简谱 需改编)
滚动鼠标滚轮可以放大,缩小图片,单击可以观看实际大小的效果
纹身刺青图片
小鸡跟小猫的简笔画母鸡率领小鸡在竹林中觅食的简笔画母鸡带着小鸡的
小众设计感荷叶边斜肩露锁骨上衣女2021夏季洋气百搭宽松短款小衫