图知网
搜索
首页
热门推荐
图片分类
[江苏]某时尚大酒店标准间客房Ⅲ施工图
下载原图
相关图片
标准客房装修图-宾馆酒店装修-筑龙室内设计论坛
[广东]某四星酒店标准间施工图
作者: 设计类型:室内设计 项目类型:酒店空间
[分享]一个酒店标准间的24种方案
【165号作品】君然温泉酒店客房设计大赛《"色"即是"空"》
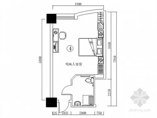
某时尚大酒店4号标准客房装修图
为你推荐
小仙女们不要看花眼喽奉上一组好看的笑容女孩头像吧
增肌##ootd##健身日常
尼尔机械纪元2b 美腿 游戏美女4k壁纸
郑恺开火锅店引争议网红经济就是靠复制
纸绳画 儿童画 这是我用纸绳做的一幅长发公主
心心念念的奥迪rs7黑武士壁纸来啦 这才是男孩子的大玩具~ 晚安兄弟们
男装档位摩托车变速箱换档原理
本发明公开了一种立体剪纸宫灯及其制作方法,其结构包括:由一整块平面