图知网
搜索
首页
热门推荐
图片分类
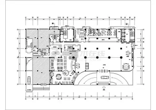
酒店大堂
下载原图
相关图片
大堂平面布置图
大厅布局图
大堂平面布置图 大堂天花布置图 大堂地材铺装图 大堂立面图 大堂立面
【已回复】宾馆大厅,求大神优化_平面研讨_室内设计联盟 - powered by
新帖排行宾馆酒店装修_室内方案图_室内施工图_室内方案文本新下载
酒店大堂建筑设计平面布局图
为你推荐
戚薇李承铉
求一张全白的背景图片,谁有,能发给我一张吗?非常感谢
600_276gif 动态图 动图
每日练一字火
洪宪:最后一个帝制年号,是如何被袁世凯选中的?
病症:牙齿前凸,下巴
2019年11月2日浙江省台州市神仙居一日游南北徒步往返太白梦游处烟霞
七张古典水墨梅花竹子中国风ppt背景图片