图知网
搜索
首页
热门推荐
图片分类
房子装修,分享厨房水电改造攻略,特别是嵌入蒸烤箱安装
下载原图
相关图片
双热风,蒸烤新物种——凯度sr80sa-gt嵌入式蒸烤一体机使用体验_烤箱
苏泊尔suporzkqd35701蒸箱烤箱家用嵌入式一体机蒸烤箱二和一
烧烤网适配格兰仕海氏松下20l蒸烤箱专用304不锈钢烤架冷却架晾网
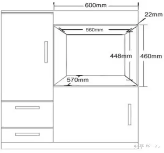
不过尺寸的话大概差不读就是下面这样:所以,在装修厨房选择你的蒸烤箱
之前就在凯度旗舰店咨询了这台嵌入式蒸烤箱,橱柜需要预留的开孔尺寸
robam老板zqb400s273嵌入式电蒸箱蒸汽炉多功能大容量电蒸箱
为你推荐
日漫头像可爱女生高清超萌的超可爱女生日漫头像图片
练习一个光遇龙骨
杨丞琳晒短发新造型波波头齐刘海俏皮可爱
基德厉害
如果爱请深爱奔驰e260游艇蓝 最美游艇蓝 一定是心动的感觉
小巧手(10)纸巾不会湿(9)乒乓球浮起来了(8)纸桥力量大(7)鸡蛋浮起来
五年级美术作品
6. 雅各布的小儿子约瑟芬逃亡埃及 7. 摩西十诫 8.