图知网
搜索
首页
热门推荐
图片分类
用黑色石材做门槛石,美观又实用!_门套
下载原图
相关图片
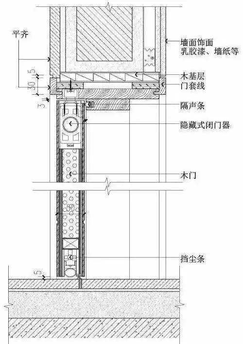
1mb格式 dwg等级:墙面剖面图立即下载立即下载欧式构件cad大样图(门套
常见门的类型与门套做法有哪些
分享不锈钢门框cad大样图资料下载
天然大理石门洞垭口门套经久耐用灵动个性
平常画图的方式一般是这样:内外套,常见于垭口的设计,如下图:内外门套
44,成品暗门套施工示意图45,移门示意图0146,移门示意图0247,黏土砖
为你推荐
15年前北京天上人间第一花魁梁海玲被害身亡至今未曾破案
熊猫头 哒哒哒 斗图 搞笑 猥琐
佟梦实拍夜戏完全看不见
国漫女神焰灵姬4k镜头特写
文档网 所有分类 表格/模板 表格类模板 收支年度汇总表2012年广告商
民间借贷正规借条电子版法务精编版下载docx4页
广藿香精油
化蛹过程