图知网
搜索
首页
热门推荐
图片分类
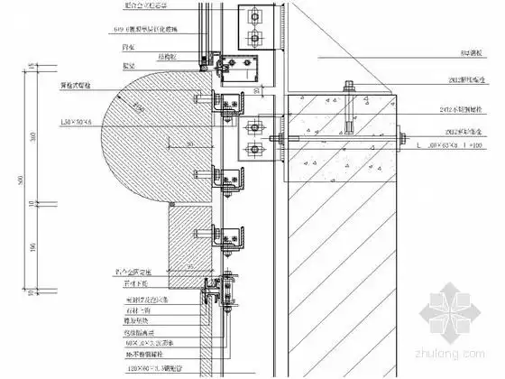
石材幕墙干挂做法
下载原图
相关图片
玻璃幕墙扣板
幕墙铝单板安装做法大样
[节点详图]节点详图(玻璃幕墙其他幕墙防水做法)vip
一种国外的明框幕墙做法
伦敦北京和上海三场大火吞噬169人敲响了外墙保温警钟
[分享]幕墙施工节点做法100多张详图!
为你推荐
周培公是谁康熙皇舆全览图是其所绘吗
火柴人简笔画|第86幅 火柴人简笔画
qq女生双马尾头像可爱
于妈又来了,这次的小作文主角是张檬
鼻子图标卡通风格
我对于欧美嘻哈歌手戴表有着固有思维印象——大金链子金手表
惠州市2021疫情防控公益宣传
五一劳动节/劳动人民/劳模风采/先进个人-样式模板素材-135编辑器