图知网
搜索
首页
热门推荐
图片分类
酒店客房
下载原图
相关图片
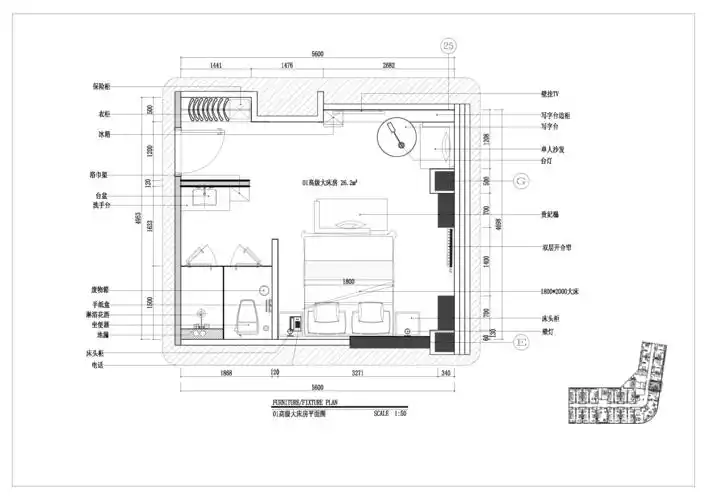
▼ 影音客房平面布置图
酒店客房设计
公寓式酒店 the branksome hotel & residences(布兰克桑姆酒店)
1客房平面布置图_看图王
旅馆设计(学生作品)
方案图纸 酒店宾馆 酒店民宿 酒店客房详细平面布置图施工图下载【id
为你推荐
宋茜欧豪被曝隐婚!女方火速发文辟谣,怒斥爆料是恶意造谣_腾讯新闻
写美篇中国海军陆战队臂章 铁锚海浪在胸间——海军军种胸标 2007年
光遇狮子头
有了这些羽毛球表情包,再也不怕微信群里斗图了!
防伪.jpg
卡通简笔画 | 40种超萌宠物合集来袭,真是可爱得不要不要的! - 元艺考
酒店
2019大落水村-旅游攻略-门票-地址-问答-游记点评,泸沽湖旅游旅游景点