图知网
搜索
首页
热门推荐
图片分类
楼梯计算
下载原图
相关图片
三步台阶三面踏步尺寸.jpg
自建房三跑楼梯怎么设计?
76米,进深3米的地方设计三跑楼梯,三面都是24的承重墙.一楼层高3.
答疑解惑
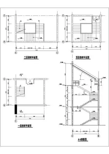
三跑楼梯设计图纸方案 平面 剖面 节点 结构
图5是一个三级台阶十一天,每级台阶长,宽,高分别为25分米,3分米,2分米
为你推荐
心凉的图片带字文字伤感人更伤人
佐助:无限月读对我无效_万花筒写轮眼_轮回眼_瞳术
张云雷红毯首秀大获成功金丝镜框雅痞风十足帅气不输偶像男团
三上悠亚同款夹克上架humanmade本周上新来了
snow brand parlor(札幌旗舰店)
爱心锁屏
黄鹤楼雪之景
创意折纸diy,纯手工折纸教程,如何折叠一只狐狸