图知网
搜索
首页
热门推荐
图片分类
k室内常用cad填充图案180例
下载原图
相关图片
[分享]铺装图案cad填充资料下载
cad填充图案设计园林景观大理石木纹铺装cad自定义图案素材【图片
k室内常用cad填充图案180例
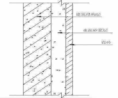
施工工序:处理基层→弹线→瓷砖浸水湿润→摊铺水泥砂浆→安装标准块
cad填充图案是乱码该如何解决?
cad动态图库丨填充图案 字体共5599套
为你推荐
淘宝网电动车价格图片适合老年人的3款电动四轮车
很多女生在酒吧喝酒时使用纸巾盖住杯子,主要是考虑到以下几个原因.
领绣艺术漆成品墙布演绎的高级灰经典蓝
壁纸养眼.
658_366gif 动态图 动图
一组美感十足,又略微诡异恐怖的图片 美感还是可以的,做手机壁纸应该
多功能紧线器拉紧器钢丝绳收紧电工电力卡线器手摇双钩拉线器pws1吨锻
多丽觅芳 时尚两层拉链手链 棕色经典款牛皮手链 zipper bracelet