图知网
搜索
首页
热门推荐
图片分类
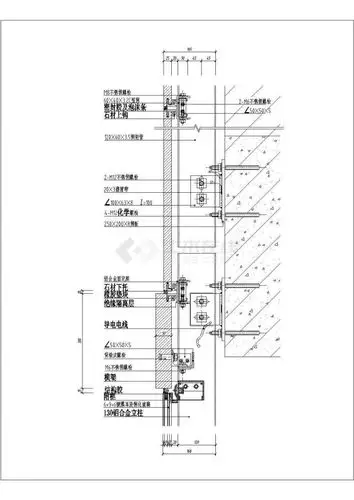
34个外墙饰面节点详图
下载原图
相关图片
外墙墙身构造设计作业参考图
23个外墙外保温建筑构造节点详图
住宅建筑外墙防水结构大样图cad合集_节点详图_土木在线
某玻璃幕墙cad完整构造详细设计节点图_通用节点详图_土木在线
综合楼节能型外墙外保温墙体节点详图
某办公楼干挂石材幕墙施工图cad
为你推荐
2560_1280
鞠婧祎蕾丝吊带裙随拍,她好像总是给人一种楚楚可怜的感觉.
c罗卡通头像绘制
食堂盘点表
8月27日 15:29 关注 iu 李智恩 头像 女生头像 评论 收藏
第五人格:入殓师奇珍时装"加特"pv内录爆料,这一次卡尔是好人
灰原哀绝美头像6 换个心情,继续分享头像
木星表面,像梵高笔下天空一般的气旋.迷幻,复杂,巨物恐惧,令人晕眩.