图知网
搜索
首页
热门推荐
图片分类
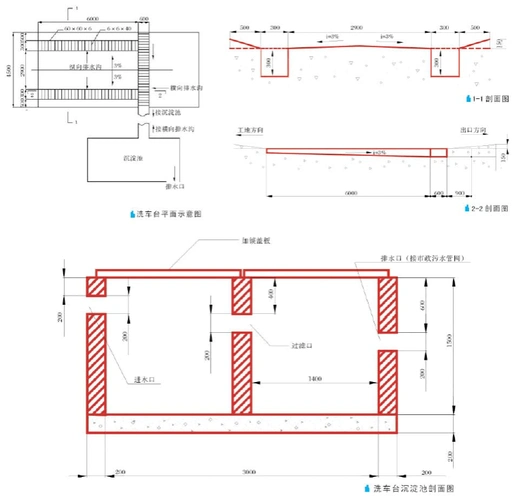
现场临时洗车槽结构设计cad图
下载原图
相关图片
洗车槽大样及剖面.
施工方法放线→原地面上挖槽→过滤池,集水井→洗车槽→人工洗车平台
cn113085794a_一种洗车槽及洗车系统在审
工地洗车槽施工图下载【id:399532666】
洗车槽详图
洗车槽标准图01
为你推荐
我冷,我不想说话 此刻,我只想烤火
胡的笔顺拼音及解释
三穗鸭网站建设,三穗鸭商城小程序制作开发-第1张图片-小程序制作网
>> 正文 据台湾媒体报道,艺人猪哥亮今日去世.
01据说是在春秋战国时期,齐宣王在位时,就特别喜欢听吹竽,为他吹竽的
创意矢量旗帜素材
美术绘画培训班招生宣传海报
韩情脉脉:韩国号国宝南大门