图知网
搜索
首页
热门推荐
图片分类
房屋结构图
下载原图
相关图片
别墅设计经典欧式设计风带书房阳台的主卧清新灵气又自然
四川成都乡村别墅设计图纸成都农村自建民宿农村别墅设计图纸
b型血多不多中国人血型分布和人类迁徙的联系
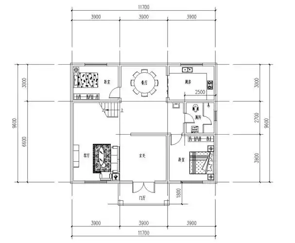
一层平面图
牛驼孔雀城108㎡复式时尚之美
房屋结构图
为你推荐
【袁朗/段奕宏】士兵突击|好爱袁朗队长~为什么我2023年才看到士兵
黄景瑜红海行动顾顺卡通头像
周星驰不做演员我理解,可他为啥把最后一次表演给了日本观众?
#范丞丞碧柔品牌代言人##范丞丞直播#
毕业于大连大学美术学院环境艺术设计专业,从业十余年,服务内容涉及
小马宝莉 风雪之心
56 岁莫女士因 2 年余前不慎扭伤,当时在就近医院行 x 线片检查后未
一家home bar的停业说明.