图知网
搜索
首页
热门推荐
图片分类
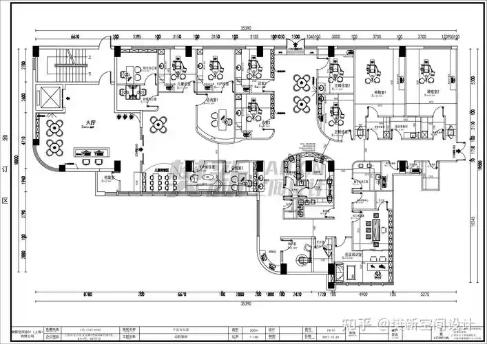
苏州微笑口腔诊所_2105074 – 设计本装修效果图
下载原图
相关图片
组培接种室的平面图怎么画
贝克创意空间设计口腔诊所平面布局参考#商业空间设计 #口腔诊所空间
牙科诊所设计需要满足哪些功能
口腔诊所布局平面图图片
200㎡口腔门诊这样设计小而美
某牙科诊所体验空间设计|空间|展陈设计|lyonchu - 原创作品 - 站酷
为你推荐
2017年12月,贾乃亮的一句话成了网络的焦点,他在直播中提到妻子李小璐
【沙海|秦昊|藏袍邪|吹灭小山河】在他山眉海目间寻到风花雪月
搜狐视频出品沉默的证明为平台自制剧提供另一种思路
翔霖|严浩翔|贺峻霖|时代少年团|tnt|图源微博见水印|自修
就这样吧
中国古代小院简笔画
江西南昌青山湖亚里士多德雕塑
m416|工业/产品|工业用品/机械|新桥君 - 原创作品 - 站酷 (zcool)