图知网
搜索
首页
热门推荐
图片分类
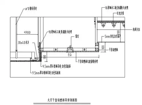
铝板吊顶是如何组成的?
下载原图
相关图片
全网最详细天花吊顶 剖切面大样图
吊顶工程施工工艺流程介绍ppt-装饰装修-筑龙建筑施工论坛
天花侧灯槽通用剖面图-华建工艺学会
关于轻钢龙骨吊顶的全部工艺,都在这了
谁有吊顶龙骨的剖面图,发我一份 谢谢-答疑解惑-广联达服务新干线
干挂铝塑板cad_2021年干挂铝塑板cad资料下载_筑龙学社
为你推荐
陆绎
事实上,刘德华从80年代开始唱歌,在乐坛算得上杨坤的前辈,为我们带来
小花仙精灵王 #小花仙 #少女心爆棚 初代花仙魔法使者
袁茵,为何要不顾世俗眼光,与侯耀文离婚,转身投入戴志诚的怀抱
kiko 卡哇伊
不锈钢行情调整,趋向回归理性_mm_市场_价格
02-活塞.ppt
员工入职体检表