图知网
搜索
首页
热门推荐
图片分类
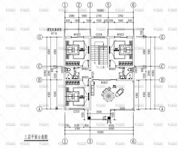
三层平面图: 3层是打造的个人空间,书房,健身房,衣帽间,卫生间一应俱
下载原图
相关图片
经典三开间农村别墅图纸案例设计
简单大气农村三间三层楼房图片,户型合理,看的我都想回家建房了
达到150%以上的使用率,的复式别墅 -别墅设计-乡村房子设计图-农村自
三层三间农村房子图纸
开间18米5进深13米新中式三层别墅设计图纸三间三层楼房设计图
简单大气农村三间三层楼房图片,户型合理,看的我都想回家建房了
为你推荐
解剖学 第五章 泌尿系统.ppt
萌宠汪星人做狗不好吗为什么要谈恋爱搞怪逗gif动图_动态图_表情包
美女演员姚星彤桌面壁纸 - 第13张
达美如艺谷廷敏:女生的7种胸型,哪一种是你理想的胸型?
给运动员画头像马龙超级全满贯
qq飞车手游a车性能排行表
素描正方体的画法简单步骤
轻便折叠钓椅多功能便携不锈钢钓鱼椅钓鱼座椅钓凳渔具垂钓椅子