图知网
搜索
首页
热门推荐
图片分类
假如食堂设计零点厨房,还将会用到设备有扒炉,炸炉,焗炉,商用电磁灶等
下载原图
相关图片
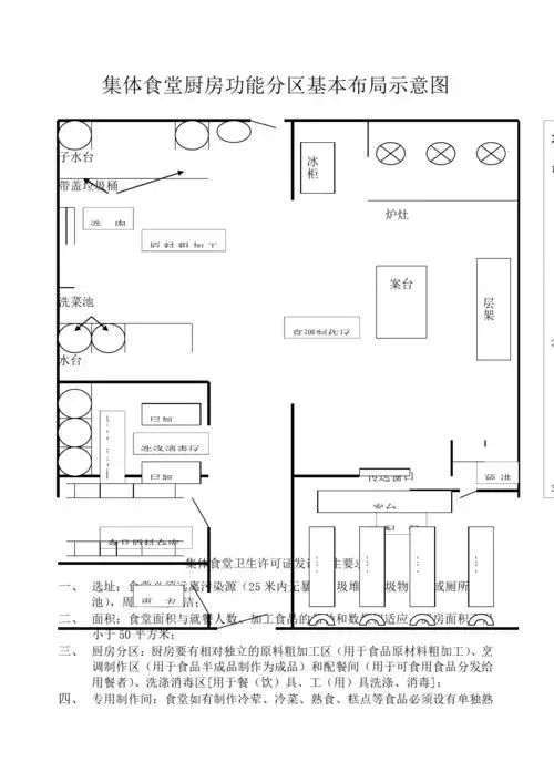
集体食堂厨房功能分区基本布局示意图
集体食堂厨房功能分区基本布局示意图
四川,昆明酒店厨房设备应用重庆商用厨房设备设计安装四川厨房设备
xxx餐馆厨房平面图
平面布局 食堂布局 餐厅平面图 食堂投标书 小学平面图 厨房设备 的
20-50人食堂厨房工程套餐3d效果图
为你推荐
杨颖baby简笔画
吴世勋壁纸专辑
魅族mx3 flyme经典原生壁纸欣赏
keynote动画 | 冷知识:车牌颜色知多少
酷狗音乐播放器pc版 10.1.12 官方版
大漠枪神:燕双鹰实力戏耍沈七七,杀人手段总是出其不意,太厉害
沙雕小黄鸭瞭望动图沙雕动图小黄瞭望表情
广场庭院法式地铺石