图知网
搜索
首页
热门推荐
图片分类
cad窗户立面图怎么画?
下载原图
相关图片
欧式窗户cad立面图库,cad图库下载
第十讲cad建筑立面图的绘制ppt
图9 窗台,窗侧和外立面防水处理节点图03饰面间段外墙面砖:原因分析1.
cad的窗户怎么画的视
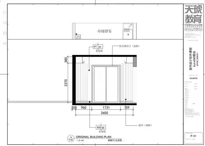
完成客餐厅立面图
室内装饰常用窗户立面图
为你推荐
【邪骨团】第一个视频希望有银看hh
宋亚轩幼崽可爱头像壁纸
云南省晋宁县杨柳冲水库粘土心墙风化料大坝新建工程
coach马车水桶包原来没有想象中大
专业跑步速干背心男肌肉健身潮修身弹力训练运动衣服夏季篮球坎肩
绘画——古风美少女练习
战天狼: 关东军追赶八路, 不料女兵冲锋枪扫射鬼子, 精彩了!
勇气 吉他谱