图知网
搜索
首页
热门推荐
图片分类
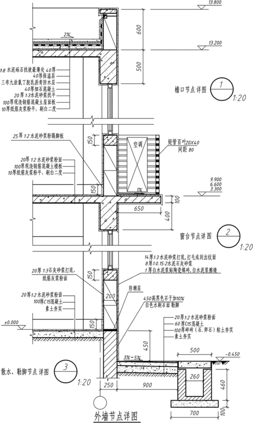
墙身大样图
下载原图
相关图片
教你读懂外墙墙身详图!
墙身大样
外墙墙身详图
某住宅室内设计装修墙身节点大样图纸
某墙身大样图cad完整构造施工图纸
墙身大样设计
为你推荐
《露水红颜》
新手小白素描入门怎么画梨子
赵丽颖楚乔传#| 剧照"我不明白,为什么人一生下来就要有三六九等,有
2019年2月28日云南昆明市东川区红土地景区是我国唯一的七彩红土地.
statements made by administration officials and p5 1 members
kiss the rain雨的印记吉他谱指弹谱 梁海彬指弹改编
鸿门宴-虞姬-刘亦菲饰
你是否也有过这样的时刻, 心累到不想说一句话, 只想独自承受这份