图知网
搜索
首页
热门推荐
图片分类
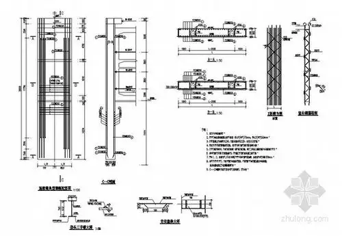
基坑工程基坑围护结构计算
下载原图
相关图片
基坑工程基坑围护结构计算
围护结构纵面图
新修道路综合管廊围护结构专项施工方案(拉森钢板桩,smw工法桩)
深基坑围护结构地下连续墙配筋设计图
表二 两城镇遗址建筑结构分类表两城镇房址结构类型较多样,且空间分隔
山东第四代住宅到底行不行
为你推荐
宜州tattooer孟女士的传统般若线条纹身手稿图案
白描线稿桂花熬夜完成希望越来越好
幼儿园大班健康:《不吃垃圾食品》课件_第1页
支部委员会会议流程图
第五人格红蝶lofter画师修竹老爷
小刺猬简笔画.秋乏啊!96#简笔画 #画画 #一起学画画 # - 抖音
香樟树果功效与作用樟树果香樟树果樟果香树果树果
21座半躺宽座保姆车发团成都九寨沟黄龙峨眉山乐山双飞7日旅游纯玩零