图知网
搜索
首页
热门推荐
图片分类
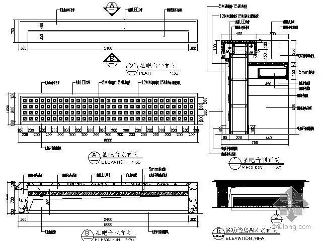
某城市酒吧吧台结构布置cad参考详图
下载原图
相关图片
酒水吧台cad详图
工业风露营酒吧78黑化露营工业风吧台
某城市酒吧台结构设计cad规划详图
娱乐会所吧台详图
某市酒店大厅吧台结构设计cad参考详图
[分享]多功能酒吧资料下载
为你推荐
古力娜扎黑白质感写真大片桌面壁纸
当今世界综合性能最佳的战斗机f22"猛禽"是有多先进?
「2021.11.03」早安心语,正能量阳光经典语录,暖心的励志图片
袁伟豪最新照片9615
打电话简谱 儿歌演唱
颜值比肩王一博不求人出席虎牙星盛典和大牌明星同台演出
天平简笔画天平简笔画图片
apple苹果homepod智能音箱siri语音控制智能家居无线蓝牙音箱音响蓝牙