图知网
搜索
首页
热门推荐
图片分类
小面积口腔诊所设计,60平米,非常适合刚创业的夫妻档医生,或 - 抖音
下载原图
相关图片
口腔医院平面布局|空间|商业空间设计|吴静timmy - 原创作品 - 站酷
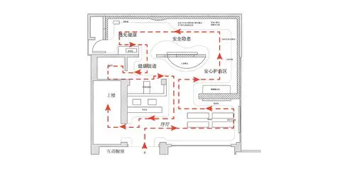
干货口腔诊所平面布置方案
成都傅福牙科诊所设计装修
某牙科诊所体验空间设计|空间|展陈设计|lyonchu - 原创作品 - 站酷
八十平的口腔诊所这么设计一点面积也不浪费
口腔案例|荆州固德口腔门诊
为你推荐
穿内裤磨大腿根怎么办『穿内裤磨大腿根怎么解决』
iphone手机壁纸,苹果壁纸,安卓壁纸,iphonex壁纸,iphone13壁纸,全面屏
宋代龙泉罐古董古玩古瓷器全美品
a4思维导图空白模板 儿童思维树练习册纸质语文数学英语 脑图训练左一
可爱哈咪猫粤语表情~唔系挂
tsm战队
兆欣 夏季连衣裙蕾丝白色韩版公主裙时尚百搭小短裙女装 图片色 均码
76岁的"太子炳"彭炽权,剧中是阿香的养父,剧外的女儿是女歌手