图知网
搜索
首页
热门推荐
图片分类
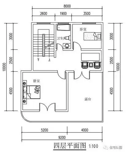
10x8米二层小别墅20万的实用小户型家家户户都建的起
下载原图
相关图片
易盖房图纸:10x8米的宅基地也能盖出漂亮的农村别墅
10x8米房子设计图
头条问答 - 面宽10米,进深8米农村自建房,怎样设计比较好?(19个回答)
8x10米的农村别墅,怎样布局实用又美观?实拍!
新中式别墅建就完了 -别墅设计-乡村房子设计图-农村自建房设计图
10x8米7农村小别墅,给父母养老的最好居所
为你推荐
绘画作品图片大全马克笔(9~12岁儿童画美术一步一步教)
十天干,十二地支的来历及包含的内容
q版线稿
movie.
锈湖根源第7关攻略
创造101主题曲发布被批太土 唯独宣仪solo抓眼球
江宗主 自截
美洲山猫,红岩石,自然,垂直画幅,野生动物