图知网
搜索
首页
热门推荐
图片分类
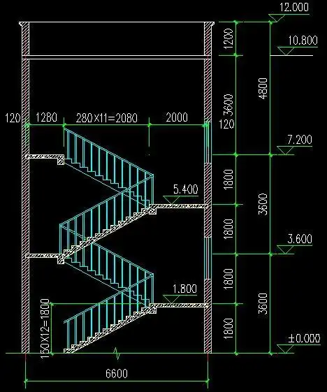
识图竞赛培训课程绘制建筑详图习题答案1702楼梯剖面绘制2doc3页
下载原图
相关图片
3层欧式风格独栋别墅设计楼梯剖面图
楼梯剖面图
三层楼梯设计图有哪些
三跑楼梯图怎么看啊
建筑图: 建筑设计说明,建筑平面图,建筑剖面图,建筑立面图,楼梯
18级小河工优秀作业-楼梯剖面图
为你推荐
中国男明星颜值排行榜猜猜谁是第一名
八字八卦星汉灿烂吴磊具备了一个成年男子的正常力量
迪丽热巴这个状态很好了呀!没必要尬黑吧!虽然没有精修加高p图
三角巾各种绑法图片(免费)
主板 1155针 ddr3内存 小板 i3-3220双核四线/七彩虹b75主板/4g内存
神奇宝贝 超级蜥蜴王
求上面的厨师卡通图像照片
急售长隆野生动物园三张门票 1.14号 低价急售 买错了