图知网
搜索
首页
热门推荐
图片分类
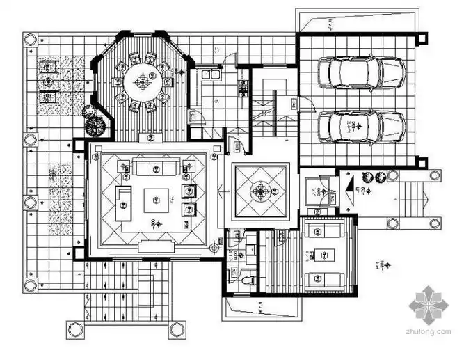
现代极简别墅cad施工图简约轻奢
下载原图
相关图片
【免费分享】绝美方案欧式效果图 cad施工图方案深化学习案例
分享| 美式别墅设计工程结构cad施工图_图纸
关键词: 大平层样板间施工图豪宅样板间施工图家装cad图纸
住宅建筑图纸cad资料下载-某框架剪力墙结构住宅施工图cad
高清cad图纸下载:山区小别墅设计cad施工效果图,获取直接使用
[分享]手绘cad地铺资料下载
为你推荐
杨紫走走停停vlog##杨紫要久久爱
盘点中国片酬惊人的5位女星,个个身价上亿,你知道哪几位?
创作灵感 #惊艳美景 #4k竖屏超清壁纸 #全屏手机高清风 - 抖音
网红爆款中国老北京特色传统风车复古汉服拍照剧组活动走秀道具
景甜张彬彬合体直播,再现司藤秦放按唇杀,互动太甜,全程姨母笑
吕氏坎新编族谱
滨海新区关于天津市滨海新区土地利用总体规划20152020年有关情况的
张翰头像 高清男明星张翰霸道头像【点击鼠标右键下载】