图知网
搜索
首页
热门推荐
图片分类
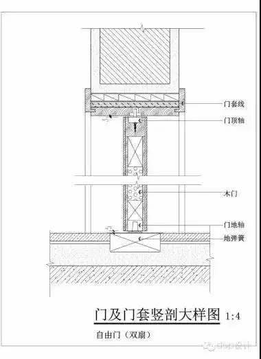
cad电梯门竖剖节点大样图电梯门套施工图
下载原图
相关图片
多功能组合门套解剖图
门套结构
解析| 3种常见木门及门套的构造做法
供应pvc免漆门实木复合门
常见门的类型与门套做法有哪些
从多个不同角度,深度剖析平开门套的做法
为你推荐
成勋个人资料(18位快要"奔四"的韩国男星) | 说明书网
周深
金菠萝鱼
全口种植牙案例
白之物语验证失败解决方法
牙齿卡通图片
科普警惕口腔黏膜纤维化的头号杀手
10.31大连小黑山一日游