图知网
搜索
首页
热门推荐
图片分类
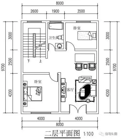
开间8米,进深9米,农村自建房如何设计?
下载原图
相关图片
8x9米户型大比拼第二套完胜
农村房屋设计图_图纸之家
8x9米实用农村小别墅户型_新款农村自建二层房子图纸
面宽8 9米乡村二层小户型别墅效果图设计施工图
8x9米实用自建房别墅适用于小宅基地红砖房的代表作20万建起
面宽8米造价13万起2018农村自建房这10套户型最适合咱老百姓
为你推荐
90年代,年轻时的傅艺伟,明眸皓齿,眉目如画,一双流波送盼的大眼睛让人
日系动漫头像72|二次元动漫情侣头像~第六期 图源网 侵删
女性痤疮图片
手残党学简笔画附教程73消防车
fgo三星杀阶静谧哈桑喜获强化硬核增伤将玩毒进行到底
市局党委副书记,常务副局长陈关华出席开班仪式并讲话.
萌图 卡通 甜品 葡萄 水果 吃货 手帐素材 贴纸 插图 套图
庚子年潮汕行—揭阳篇