图知网
搜索
首页
热门推荐
图片分类
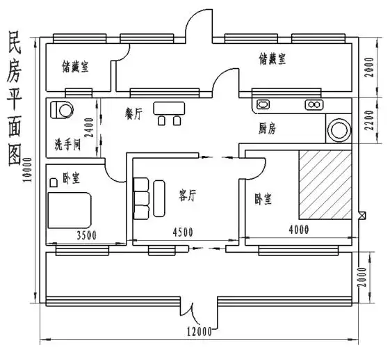
10x12米二层房屋设计图,诠释农村房子应该怎么建
下载原图
相关图片
首层面积140平方米3层私宅设计建筑施工图 model (1)
农村砖瓦房屋建筑设计图
7套带小院的图纸,这才是现代农村自建房该有的样子,值得收藏!
经济乡村民房设计图纸含外观图一层平面
两层新农村房屋设计图片
农村自建房图纸:小面宽中式别墅
为你推荐
黄晓明问赵丽颖:还会想再婚吗?不料赵丽颖的回答,宁静都心疼了
心痛伤感流泪女生头像图片
上游时尚宋威龙时尚大片展现优雅侧颜杀
可爱的小章鱼99简笔画
显白神器lisa的黑茶色短发真好看是路人都会惊艳的程度
投行大厦-投行大厦写字楼-办公楼出租价格信息-深圳365淘楼网
"没招生就满员"有违教育公平
悦宾楼