图知网
搜索
首页
热门推荐
图片分类
生活不易,多才多艺.
下载原图
相关图片
生活不易,多才多艺
1,只要方法得当,多才多艺就不是一件难事.
来,给妈妈当个垫脚石
生活不易 唯有多才多艺
生活不易多才多艺
生活不易,多才多艺 想学的东西一点要坚持下去 未来的你会感谢现在的
为你推荐
别再多管闲事了波兹
中国女篮队史十大巨星:榜首无悬念,1米65后卫居次席,陈楠第6
小朋友比身高简笔画量身高的小女孩简笔画怎么画怎么画量身高女孩身高
童年的记忆老鹰捉小鸡
你小心打雷-表情图片 - 壁纸家
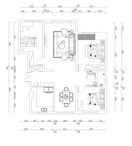
装修设计 西安装修 西安装修案例 三室一厅一卫,低调奢华
2021款gmc育空suv,外观时尚大气,豪华感依旧
先天性就有掌跖角化症而且很严重有心理障碍