图知网
搜索
首页
热门推荐
图片分类
张茜明星资料大全-张茜动态_张茜电视剧电影-爱奇艺泡泡
下载原图
相关图片
张茜一支沫东北姑娘
snh48张茜787878787878
张茜一时兴起
【张茜】20230214 情人节直播 | 唱《时之卷》的歌 | 和何阳青青连麦
张茜
张茜九号公路
为你推荐
王凯kkw# #伪装者 明诚# cr:电视剧伪装者
桃花简笔画画法步骤
真正男子汉王金武_《真正男子汉》王金武生活照曝光,盘军家出生高颜值
草莓,牛奶,白色背景 iphone 壁纸
验孕棒一条深一条浅有可能怀孕了
奥斯维辛集中营
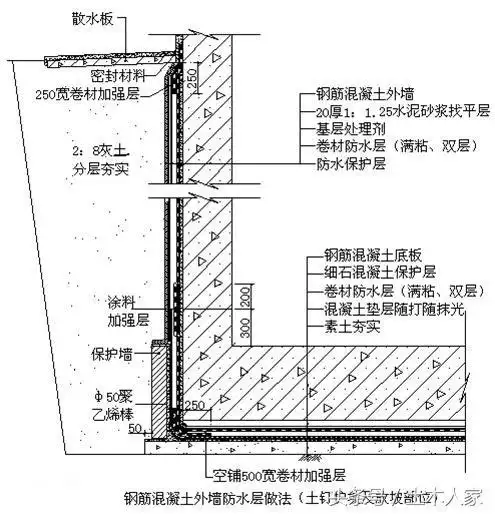
住宅楼地下室防水工程施工方案
简笔画新衣服的