图知网
搜索
首页
热门推荐
图片分类
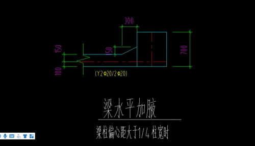
梁水平加腋钢筋怎么看图纸说明让看16g图集但是钢筋看不懂老师能帮忙
下载原图
相关图片
基础梁垂直加腋怎么画?
梁下部加腋钢筋的根数问题
这种错位梁的梁加腋怎么设置
框架梁水平加腋
梁水平加腋是这样构建吗?gtj2021
水平加腋怎么验收?
为你推荐
吃田螺的季节到了,正宗的秘制香辣田螺一次吃过瘾,好吃停不下来
在知识的海洋里遨游
自然灾难【正版好书,下单速发】
西安地铁3号线(科技路站)
2021新款夏季性感挂脖吊带女露肩修身上衣外穿内搭小背心韩版潮黑色
8月30日,土星将第二次与月亮相伴.
《小美人鱼》是丹麦作家安徒生创作的一部童话故事,讲述了一个美丽的
有关伤心的句子