图知网
搜索
首页
热门推荐
图片分类
ff14爱梅特赛尔克同人图 - 米画师
下载原图
相关图片
爱梅特赛尔克,好伟大的一张脸 .
【整理存档】爱梅特赛尔克台词(纯人声含末日本和歼灭战)
ff14##爱梅特赛尔克
【ff14/爱梅特赛尔克】perspectives
爱梅特塞尔克ff14twiowlnaitou
爱梅特赛尔克
为你推荐
差不多的经历,希望两位跳水女皇都能幸福!#伏明霞 #郭晶晶
4cm凌乱钢架烫男士发型推荐男士短发
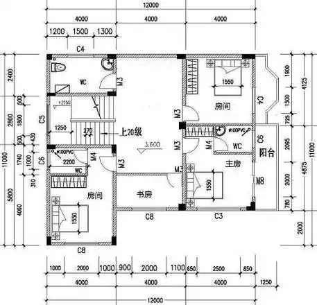
p> a href="#" data-lemmaid="5988308">房屋设计图 /a>是一种房屋的
铃儿响叮当钢琴谱宝宝巴士f调钢琴弹唱五线谱
尸源协查9月20日320国道杨村桥一老人因交通事故不幸
云南少数民族插画
一些戴耳机的美女各种风格
劳动最光荣手抄报图解