图知网
搜索
首页
热门推荐
图片分类
每天吃肉有"禁忌"?营养师:这4个部位一个都不能吃,毒性很强
下载原图
相关图片
雄鱼解剖记【陈天怡】
鲤鱼解剖记
正经的生物解剖
鱼胆不明目 误食有风险
10岁男孩围观杀鱼 出于好奇吃鱼胆中毒|鱼胆|鱼胆
麻烦一下,哪个是鱼胆?
为你推荐
花千骨 白子画 霍建华
红纸窗花24款剪纸字体设计
各族群众欢聚一堂 喜迎"壮族三月三"|广西_新浪财经_新浪网
在批发雪糕的地方发现了小时候很爱吃的和路雪奇彩旋还是小时候的味道
奢华体验2020款宾利飞驰鉴赏
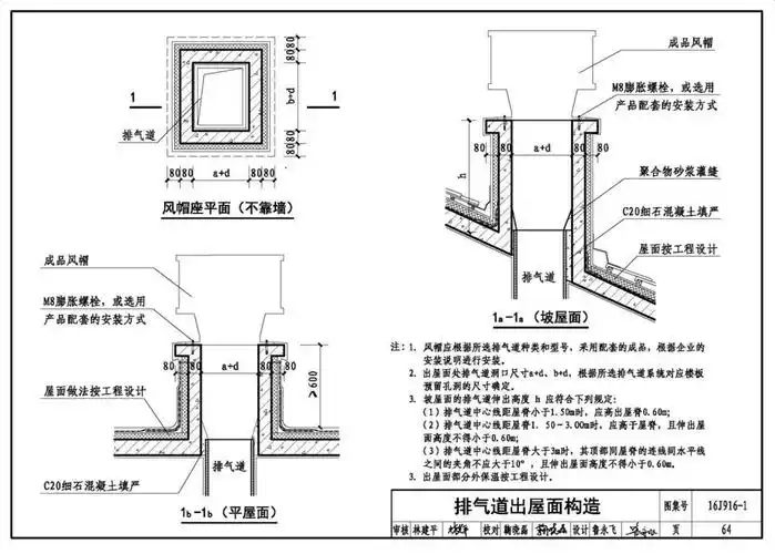
图集解读图解16j9161住宅排气道一各大修编亮点
剑南春金剑南k6双支礼盒52度500ml2瓶
沙眼是什么样的图片