图知网
搜索
首页
热门推荐
图片分类
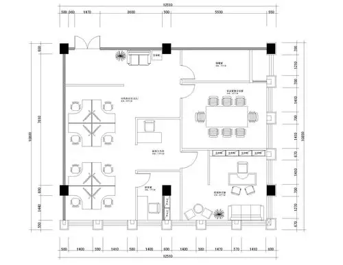
台湾设计,台湾办公室设计,台湾设计公司,现代风格办公室设计,台北设计
下载原图
相关图片
办公室设计平面图片欣赏
高档写字楼办公室设计平面图片大全
关键词:现代办公空间室内平面布置图 室内设计 室内装饰 平面图 办公
上海一桅建筑设计,无锡办公室设计,无锡科技公司,现代风格办公室
标签:办公室布局图平面图办公室设计建筑平面设计关联文章推荐18款小
[分享]现代风格办公室装修设计资料下载
为你推荐
隐婚30年零绯闻,长期吃剩饭菜,一件衣服穿35年,却因直播被骂哭_张晨光
飒爽英姿楚乔
甲贺忍蛙简笔画 精灵宝可梦简笔画甲贺忍蛙简笔画教程
升旗台
矢量休闲女式长袜图
87版《红楼梦》中的薛宝钗:51岁的她依旧单身风韵不输当年
jojo中历代jojo到底是什么辈分关系
麻将怎么才算胡图解