图知网
搜索
首页
热门推荐
图片分类
[分享]剪刀墙资料下载
下载原图
相关图片
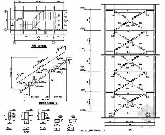
某剪式楼梯构造详图
剪刀楼梯的两个梯段能否作为两个安全出口的探讨
一种装配式剪刀楼梯的制作方法
1f和2f的剪刀梯的跑数整么确认,他1f~2f中间多了2段
剪刀梯总图
施工图之剪刀梯详图
为你推荐
五十六个民族卡通人物图片
破云
《暂时停止呼吸》战栗禁声 -- @movies【开眼电影网】http://www.
朱珠多次列入全球最美面孔top100
大时代
清代铁制秤砣完整保老保真
水果玉米是水果还是蔬菜?
motox极怎么样摩托罗拉motox极评测视频