图知网
搜索
首页
热门推荐
图片分类
75㎡南北0万
下载原图
相关图片
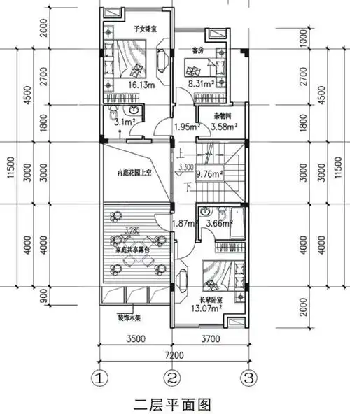
农村自建出租房户型设计 开间7.
7字户型,希望改成两个套间
户型|入户门|客厅|别墅|卧室_网易订阅
看看这套户型,挑空客厅,健身房全都有
面宽7米自建房,这样设计怎么样?11室3厅适合农村家庭
7米面宽农村自建房户型2套中式典雅现代时尚选哪个
为你推荐
治愈系风景图片小清新,夏天风景美图超清 唯美,风景照片高清唯美夏天
漂亮的富士山风景唯美高清桌面壁纸高清大图预览1920x1080_风景壁纸下
李知恩(iu)-清新形象与多才多艺,魅力无限|明星写真_音乐_歌曲_才华
古代女生简笔画全身画 第1页
可爱熊表情包gif667211哈喽hello黑色字10211459矢量图哈喽云形图标
家庭火锅食材清单75附万能蘸料公式
格子花纹图案01—矢量素材
no.4 超蓝悟空