图知网
搜索
首页
热门推荐
图片分类
迪迦在奥特十兄弟中实力可以排在第几位?
下载原图
相关图片
卡通奥特曼插画-举手动作的迪迦奥特曼
奥特曼上课
迪迦奥特曼迪迦摆过的经典姿势发动光线不算什么最后才是绝活
奥特曼斗图表情包史上最全版
万代xplusxplusshf迪迦奥特曼登场姿势复合形态迪加tv版a01赛文现货
当迪迦奥特曼沉迷上于举重戴拿给迪迦哥哥点赞
为你推荐
北宋汝窑官(龙鳞开片精美)
图文:盛典现场-王中磊代冯小刚领取荣誉
1211m农村两层带露台别墅(适合农村别墅外观大全)
绝版车:重汽豪沃(十吨王)国五加尿素.新货到[庆祝][庆祝] - 抖音
写真夫妻照窃听风云3剧照危城剧照扫毒剧照暴疯语剧照三城记剧照逃出
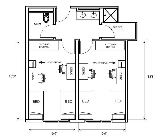
(平面)#(宿舍平面)#(学生宿舍平面图)#(四人间)#(宿舍公寓)学生宿舍
【自动重合闸保护开关】hd63a自动重合闸保护开关 漏电过欠压短路自
一颗清代特大蜻蜓眼琉璃珠