图知网
搜索
首页
热门推荐
图片分类
雪花团花图案更适合法剪纸表现
下载原图
相关图片
【剪纸教程】漂亮的雪花窗花大全集_剪法
【剪纸教程】漂亮的雪花窗花大全集_剪法
一张红纸就可以剪出漂亮的窗花,快和孩子一起做起来吧#抖音图文 - 抖
【剪纸教程】漂亮的雪花窗花大全集_剪法
「美图欣赏」冬天到了,分享几十种雪花剪纸窗花剪法,太好看啦!
儿童剪纸窗花雪花大全
为你推荐
吴世勋腹肌-宝藏图片(附封面图)-话本小说网
诸葛亮用石头摆的八阵图对应世间哪种阵法千年来只一人识破
「微信头像」19张百家姓头像,8张姓名头像,新款绿色头像
纪录片.bbc.山地大猩猩.e03.2010[高清][英字]
可爱,实在是可爱! #瑶 #玄策 - 抖音
矮塔斜拉桥三维图纸
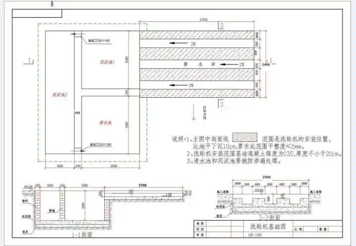
zhtr-100-武汉工地自动洗车平台基础图纸
我们的洗车工位