图知网
搜索
首页
热门推荐
图片分类
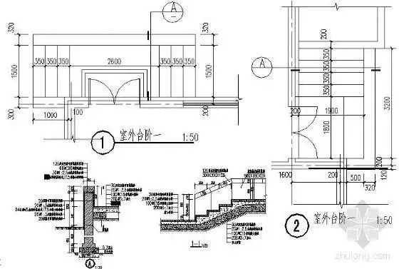
7.5室外台阶构造
下载原图
相关图片
2 室外坡道坡道可和台阶结合应用,如正面做台阶,两侧做坡道.
台阶剖面图十一
[分享]台阶法施工资料下载
台阶, 台阶,坡道构造类型
[分享]室外台阶详图资料下载
台阶断面详图
为你推荐
曾黎早年短头发的时候好飒,五官太标致了 676767
【抠图素材】★透明人物
来一波肖战签名照,喜欢的小飞侠快快来收藏哦_手机搜狐网
林妙可,一位童星出身的年轻女孩,最近发布了许多新近照片.
高中女生柚圆字体走红风格可爱字迹圆润受到阅卷教师青睐
古惑仔之猛龙过江
卡卡西真的精通千种忍术吗他使用过哪些忍术呢