图知网
搜索
首页
热门推荐
图片分类
黑色宝马汽车标志大全及名字图片免抠素材
下载原图
相关图片
宝马换logo走扁平化趋势商标注册得怎么样
bmw logo,标志-手机壁纸
宝马与长城合资谁更强势
第十名:宝马
宝马标志(宝马发布全新logo!
get your personal headless cms demo
为你推荐
卡通萤火虫简笔画彩色
洛杉矶湖人队
灰熊有意莫-威廉姆斯 双方将会面
初中生勉励学习墙贴纸书房卧室墙面装饰床头贴画脚踏实地励志墙纸
粘土恐龙教程第七集啦#超轻粘土 #手工diy #粘土教程 # - 抖音
在大腿的根部长了一些红红的东西,不痒,像是什么癣.
vivox21能单独换外屏吗 碎屏保多少钱
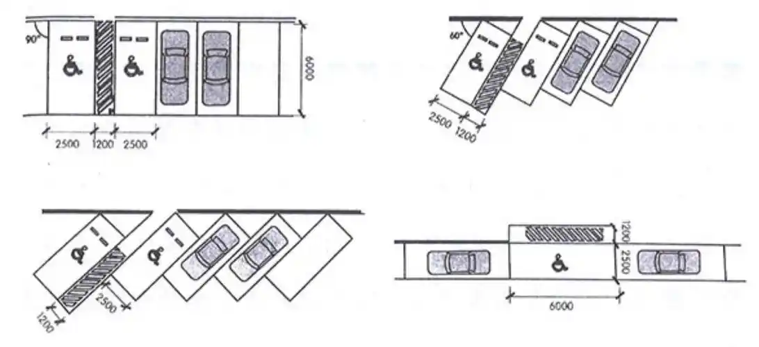
无障碍机动车停车位尺寸示意图