图知网
搜索
首页
热门推荐
图片分类
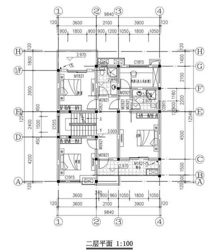
3栋面宽10米的自建房都用到弧形楼梯乡村生活也会让人羡慕
下载原图
相关图片
10米面宽自建房 这个户型算典 后悔看晚没
10米开间二层新农村自建房平面布局合集
10米宽两开间三层农村自建房设计案例
20套10x10米新款农村别墅,占地小功能挺全,小户型也迎来了春天
这4套户型方正大气,堂屋旋转楼梯全有_设计
新农村简欧式三层农村别墅,10米x11米,平面图方案1
为你推荐
玄武@96╭(°a°`)╮94采集到龙(89图)_花瓣
高清:福原爱晒美照 狂赞老公摄影技术好
武汉汉阳四新华中智谷写字楼出租-武汉58同城
黄家驹《冷雨夜》吉他谱c调吉他谱流行音乐
乐高机甲moc
timo设计-大禾集团办公室
《冰雪奇缘 》艾莎公主
商务合作握手